XKL-XF全程吸附高速印刷开槽模切粘箱打包一体联动线
产品描述 :
XKL-XF高速印刷开槽模切下折粘箱联动线,旨在解决现有的纸箱印刷机械单机自动化差、稳定性...

整机性能
XKL-XF高速印刷开槽模切下折粘箱联动线,旨在解决现有的纸箱印刷机械单机自动化差、稳定性低、优良性差,外观造型不美观、寿命短等问题。该项目产品"XKL-XF高速印刷开槽模切下折粘箱联动线"采用高速直接印刷方式,集印刷、开槽、模切、粘箱、折叠、纸箱成型于一身,可一次性完成从瓦楞纸板到成品包装纸箱的生产过程。产品配备有自动喂料平台、全自动电脑控制、数字显示,运用细致伺服电机与电子模块来调节与监控整个生产过程。
技术参数
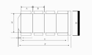
| 规格 | 920 | 1224 | 1424 | 1628 | ||
| 机器尺寸 | mm | 900×2200 | 1250×2600 | 1400×2600 | 1600×2800 | |
| A | 大的 max | 750 | 850 | 850 | 850 | |
| 小 min | 130 | 135 | 135 | 135 | ||
| B | 大的 max | 750 | 850 | 850 | 850 | |
| 小 min | 130 | 135 | 135 | 135 | ||
| C | 大的 max | 2200 | 2600 | 2600 | 2720 | |
| 小 min | 600 | 620 | 620 | 620 | ||
| F | 纸板长度 | 大的 max | 2200 | 2600 | 2600 | 2800 |
| Z | 涂胶宽度 | 小 min | 40 | 40 | 40 | 40 |
| X | 箱高 | 小 min | 80 | 90 | 90 | 120 |
| H | 单片纸板宽度 | 大的 max | 920 | 1200 | 1400 | 1600 |
| 小 min | 250 | 350 | 400 | 450 | ||
| 印刷面积 | 大的 max | 900×2000 | 1200×2400 | 1400×2400 | 1600×2800 | |
| 模切面积 | 大的 max | 900×2100 | 1100×2500 | 1400×2600 | 1600×2800 | |
| 未折纸板 | 大的 max | 1550 | 1650 | 1650 | 1650 | |
| 机械速度 | 张/ 分 | 300 | 250 | 200 | 180 | |
| 功率(约) | kw | 45 | 50 | 50 | 50 |
推荐动态
联系我们
手机:17631731095
网址:www.cz-xkl.com
地址:河北省沧州市东光县城南3公里(105)国道西侧
邮箱:xingkailimachine@gmail.com